Smuk stenvilla på en kæmpe grund, med pool, omgivet af grønne områder i en lille landsby nær Umag
Huset har et samlet areal på 220m2 på et haveareal på 1200m2, som strækker sig gennem stueetagen og første sal....
820.000€
Umag
23251 Kolan, Mandre, Kroatien
Til salg
429.000€


































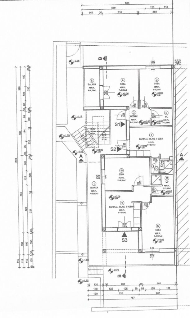
Nach Südwesten ausgerichtete Doppelhaushälfte mit neun Wohneinheiten und der Möglichkeit im Sommer an Touristen zu vermieten.
Auf jeder Etage befinden sich drei unterschiedlich grosse Appartements:
– Appartement (S1), bestehend aus Wohn-/Essbereich mit Küche, einem Schlafzimmer und Bad.
– Einraumappartement (S2), bestehend aus einem Wohn-/Schlafraum mit Bad.
– Grosses Appartement (S3), bestehend aus Wohn-/Essbereich mit Küche, zwei Schlafzimmern und Bad.
Alle Appartements sind von ihren jeweiligen Balkonen aus via Außentreppe separat zugänglich.
Eine Dachterrasse bietet die Möglichkeit eines ungestörten Aufenthaltes mit grandiosem Blick zum Meer und über die gesamte Ortschaft.
Im Erdgeschoss des Hauses befindet sich eine grosse Garage mit gefliestem Boden, die auch anderweitig nutzbar wäre, z.B. als Gemeinschafts- oder Partyraum. Ein Duschbad mit WC ist zudem hier untergebracht.
Ortschaft im Süden der Insel Pag.
Pag befindet sich ca. 50 km nördlich von Zadar und hat Brückenanbindung an das Festland.
Bis zum Strand sind es nur 100 m. Einkaufsmöglichkeiten finden sich in unmittelbarer Nähe.
Das Haus wird versorgt mit Fernwasser, welches über eine Solaranlage gewärmt wird. Zudem ist auch eine Wasserzisterne vorhanden.
Abwasser wird über eine Septikgrube entsorgt.
Das Objekt ist an das Stromnetz angeschlossen und verfügt über Telefon- und Sat-TV-Anschluss.
Es besteht die Möglichkeit angrenzend ein ca. 100 m² großes Grundstück zu erwerben. Zusätzliche PKW-Stellplätze könnten damit angeboten werden.
Kaufpreis für dieses Grundstück nach Vereinbarung.





Huset har et samlet areal på 220m2 på et haveareal på 1200m2, som strækker sig gennem stueetagen og første sal....
820.000€





Moderne villa i en meget rolig beliggenhed, langt væk fra turistmasserne, men tæt nok på havet; Kun 5 km fra den...
720.000€
Eksklusivt salg: Nybygget villa med førsteklasses beliggenhed i første række ved siden af lystbådehavnen
Owning a home is a keystone of wealth… both financial affluence and emotional security.
Suze Orman