Smukt nybyggeri i første række med havudsigt
To fuldt møblerede og udstyrede rækkehuse ud af i alt fire nybyggede enheder sælges nu. Hver bolig har to etager med...
400.000€
Zadar
23212 Vir, Kroatien
350.000€







En moderne villa med pool, der i øjeblikket er under opførelse.
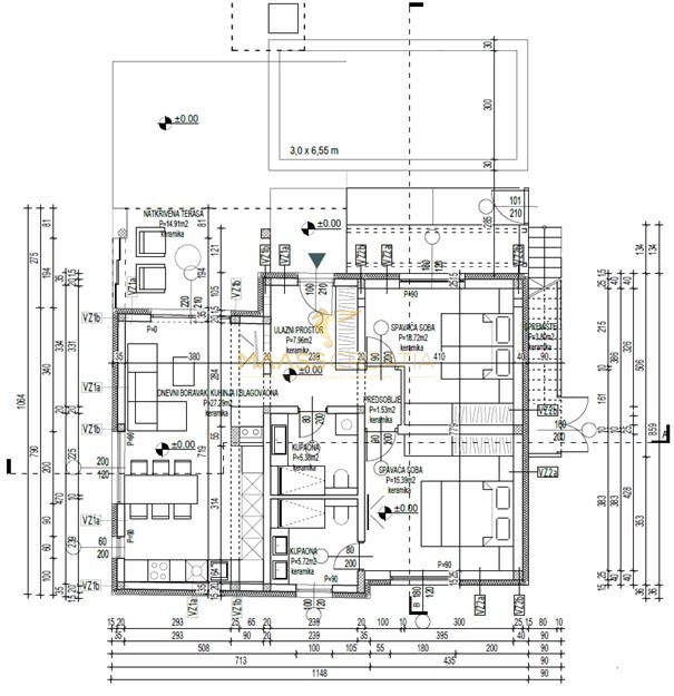
Huset består af en stueetage og en første sal.
I stueplan er der entre, køkken, spisestue, stue, to soveværelser og to badeværelser samt terrasse.
På 1. salen er der entré, køkken, spisestue, stue, soveværelse, badeværelse med forværelse til vasketøj og en stor terrasse.
Villaens samlede netto brugsareal er 152,53 m2.
Værelserne opvarmes og afkøles ved at installere vægmonterede split klimaanlæg.
Opvarmning af bygningen er planlagt på stedet med en pillepejs designet til at brænde træpiller.
Pejsen er i begge stuer, i stueetagen og på første sal.
Solfangere er installeret på taget af bygningen for at producere varmt vand.
Til de arkitektoniske fundamenter i gården planlægges en svømmehal på 6,55 x 3,0 m og en dybde på 1,3 m.
Ved siden af bassinet er der planlagt et maskinrum til svømmehalsteknologien, hvor varmepumpens indendørsenhed skal placeres udover svømmehalsteknikken. Driften af svømmehallen er beregnet til saltholdigt havvand.
Der bliver plads til tre biler i gården.
Villaen er designet af det anerkendte Zagreb arkitektfirma 4uHa.
Den planlagte færdiggørelsesdato for byggeriet er planlagt til 10/2024.
Der er byggetilladelse til huset, hvori alle gebyrer for fælleskabet, vandbidrag og eltilslutning er betalt. Det er muligt at købe huset i byggefasen (ifølge den annoncerede pris 350.000 EUR) eller efter færdiggørelse af byggearbejdet (prisen for det færdige hus med brugstilladelse er 600.000 EUR).
Tæt på centrum, stranden og alle større faciliter.





To fuldt møblerede og udstyrede rækkehuse ud af i alt fire nybyggede enheder sælges nu. Hver bolig har to etager med...
400.000€





Dies ist die perfekte Gelegenheit, Ihren Traum zu erfüllen: Dieses bereits ausgebaute und bewohnbare „Erdgeschoss“...
257.500€
Fuldstændig renoveret treværelses ferielejlighed på Zadars populære boulevard
Owning a home is a keystone of wealth… both financial affluence and emotional security.
Suze Orman